
Sügavkülmikud
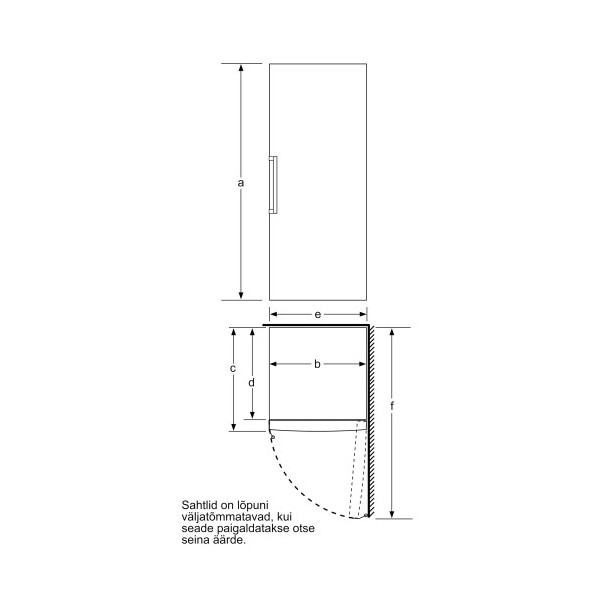
Sügavkülmik Bosch, 186 cm, 237 l, 42 dB, elektrooniline juhtimine,...
GSV36VWEV
614,75 €
Küsige tarneaeg